| PROJECT: | VILA PORTAROSE |
| SOURCE: | PROJECT COMMISSION |
| CLIENT: | PRIVATE CLIENT |
| SITE: | ŠENTJANE - PORTOROŽ, SLOVENIA |
| PROGRAM: | PRIVATE HOUSE |
| AUTHORS: | BREDA BIZJAK, LORENKA STROPNIK |
| STATICS: | DUŠAN DAVIDOVIĆ |
| MECHANICS: | TOMISLAV GUBANEC |
| ELECTRICS: | BOJAN GERMOVÅ EK |
| DATE: | 2004 |
A private villa Portarose is located on the very hill top of Sentjane, above the city of Portoroz, where beautiful sights of the Piran bay and the italian Dolomits can be seen.
The house location, on the plot border, enables a maximal exploitation of the same plot for vineyards and olive plantations.
Considering the investor's desire for intimacy and comfort of his new home, we decided to create a house with an introverted character, where a closed and firm external envelope takes the protective role over a soft and fluid interior.
While the house is maximally fluent inside, more intimate communication toward outside is present. Transitional spaces (loggias), functioning as interior and exterior spaces came out as the result.
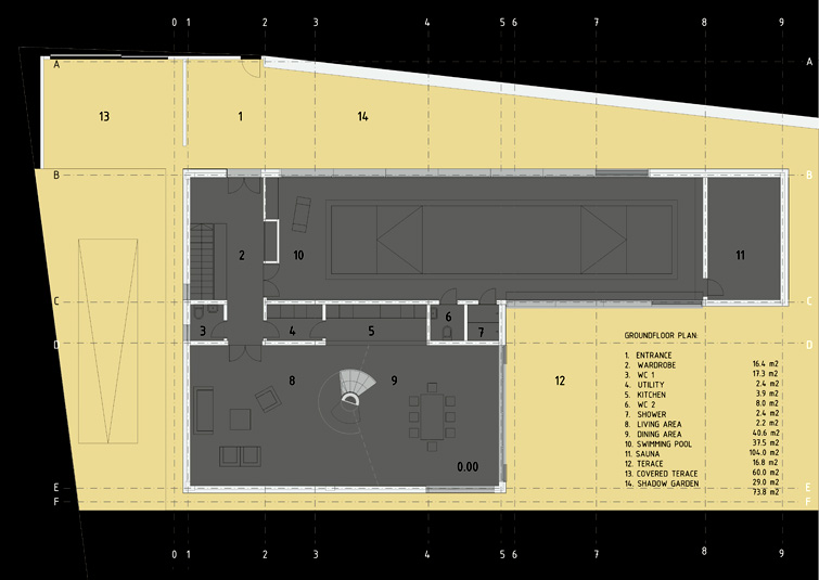
Ground plan organisation:
Four specific investor`s requests influenced the ground plan organisation:
1. A fireplace as the center of the main living area of the house
2. Circular motion
3. Galleries
4. Dimension of the water surface of the swimming pool: 3x15m2.
The form of the house is a result of its interior organisation. It uses a duble helix shape,with its axle as a communicational and constructional "trunk". At the same time, the pillar-trunk bears the integrated fireplace inside it, two galleries on different levels and a staircase wrapped around it.
The groundfloor is divided with a service complex into an entering area with a winter swimming pool and to a living area with a dining room. Three bedrooms and a bathroom, as the only closed volumes,divide the south and the north loggia on the first gallery (3m).
Half a storey higher,the next gallery is situated – a terrace belveder.
Soft and connected transitions between the ambients enable a maximal visual connectivity between social spaces of the house, from a ground floor to a terrace.the visual interconnectivity defines a privacy degree or/and openness of each ambient. The connectivity of programmatic parts of the house reflects also on its exterior.
The raised periscopic volume of the south loggia enables additional sunlight into the very center of the house. Classical opennings on the facade are screened with perforated panels.