RECONSTRUCTION OF HISTORICAL FAMILY HOUSE, PULA, CROATIA
Commission, 2017
PROJECT:RECONSTRUCTION OF A RESIDENTIAL BUILDING
SOURCE:PROJECT COMMISSION
CLIENT:PRIVATE CLIENT
SITE:ZADARSKA STREET, PULA, CROATIA
PROGRAM:HOUSING
AUTHOR:BREDA BIZJAK
STATICS:TGI D.O.O.
DATE:2018

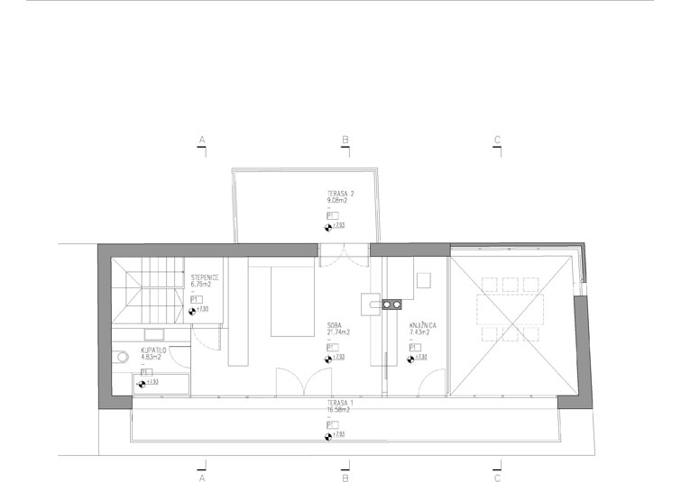
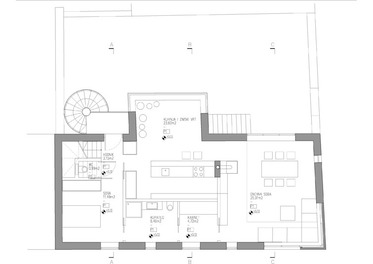
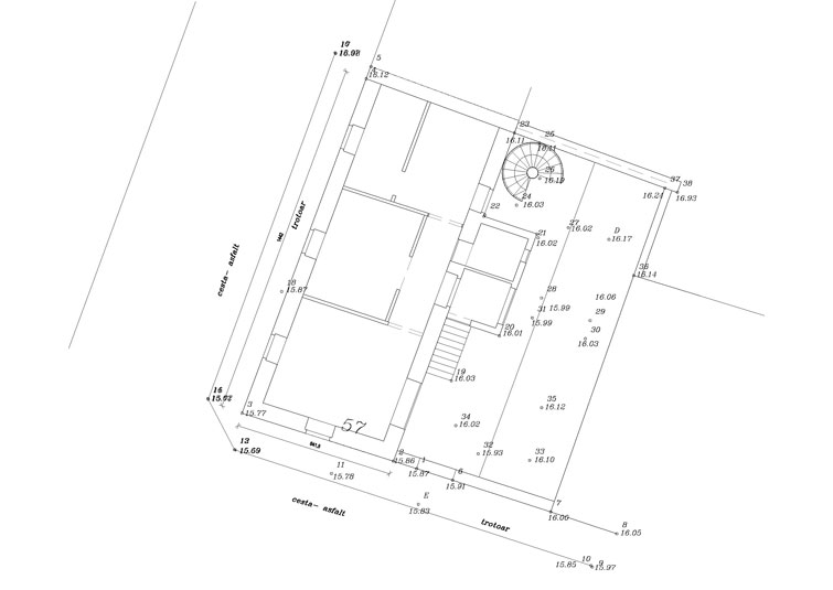
The intervention presents the reconstruction of an existing family house dating from the biggining of 20th century. The owners wanted to add new apartment on two stories on the existing volume and to renovate the existing building. Due to the planned preservations of the existing volume the idea of the reconstruction was to clearly distinct additional volume from the existing one in the means of a gentle confrontation and a dialogue between old and new. This can be read from the usage of a material, confronting the visible brick with mortar, darker and textured surfaces with brighter and smooth ones. To maintain the intimacy of each housing unit, new exterior staircase has been added.