KINDERGARTEN RINGA RAJA, VIDEM-DOBREPOLJE - C
Commission, 2010, Realisation, 2017/2018
PROJECT:KINDERGARTEN RINGA RAJA
SOURCE:COMMISSION PROJECT after COMPETITION - 1st PRIZE
CLIENT:THE MUNICIPALITY OF VIDEM - DOBREPOLJE
SITE:DOBREPOLJE, SLOVENIA
AUTHORS:BREDA BIZJAK, LIDIJA DRAGIŠIĆ, KATJA FLORJANC, EMIR JELKIĆ, AJDA VOGELNIK SAJE
STATICS:JANA PRIBAKOVIĆ, IGOR LIPANJE (ELEA IC)
MECHANICS:MARKO SPETIČ (LIVRA D.O.O.)
ELECTRICS:ROBERT BIZJAK (ELITA IB)
PROJECT DATE:2010/2011
REALISATION:2018

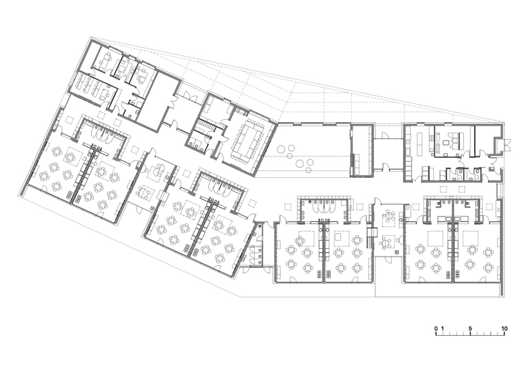
The kindergarten is conceived as a single storey, slightly folded building that opens into quality outdoor area of the complex with its east facade.  The connectivity of outdoor spaces is exceptionally clear and  of a high quality because it provides collective green areas which can be used by existing and new facilities.

The kindergarten ground plan is organized in the way that concentrates  administrative and service programmes on the west side, oriented to the street, while all  children’s playrooms are oriented  eastward to the green and woody area.

Design results with unified image of the complex and it also generates a new identity to the complex, despite its heterogeneous content of existing buildings on the site.

2010 - 1st prize on public competition,
2010 - the commission for the project started,
2011 - the project gained the building permit,
2017 - the realisation of the project started...
2018 - in September 2018 the project completed